担当 奥野
物件ID:00035029

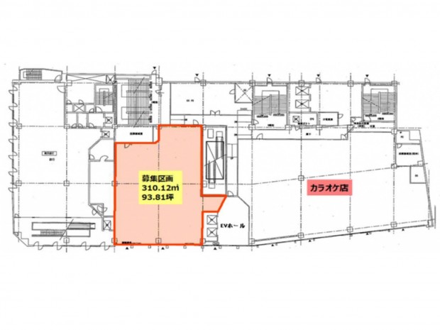
物件情報
| 沿線情報 | 京急本線『横須賀中央』駅 徒歩2分 | ||
|---|---|---|---|
| 所在地 | 神奈川県横須賀市若松町2丁目 | 物件ID | 00035029 |
| 階数 | 地上4階 | 坪数 | |
| 引渡し状況 | スケルトン | 前テナント業種 | |
| 築年数 | 50〜60年 | 引き渡し時期 | 即時 |
| 現況 | 空き | 構造 | SRC造 |
| 賃料 | 90〜100万円 | 管理・共益費 | 281,430円 |
|---|---|---|---|
| 敷金・保証金 | 10ヶ月 | 償却 | |
| 礼金・権利金 | 1ヶ月 | 契約形態(年数) | 定期借家契約 5年 |
| 企画料・造作譲渡手数料 | 更新料 | ||
| 坪単価 | 10,000円 | 初期費用 | 1000〜2000万円 |
| 造作譲渡金 |
| 備考 | 保証会社・火災保険必須 営業時間相談可 看板掲出料 月額70,000円(税別) |
|---|---|
| 周辺環境 | 京急線横須賀中央駅前ビル徒歩3分の好立地! 近隣に商店街があります。 |
| NG業種 | スナック、ガールズバー、クラブ、キャバクラ、ホストクラブ |
※店舗リサーチ.jpでは貸主様・管理会社様・出店希望者様・退店希望者様へ配慮を払い、上記の物件情報に関しましては以下の理由により詳細情報を掲載しておりません。
・対象物件の特定を避けるため
・未解約物件の情報流出を阻止するため
・経済条件の情報流出を阻止するため




































































